Общежитие для ветеранов специальной военной операции во Всеволожске

Новое общежитие для ветеранов специальной военной операции откроется при Мультицентре социальной и трудовой интеграции в 2024 году. Его строительством займется инвестор по соглашению с Правительством Ленинградской области.

Разрешение на строительство общежития во Всеволожске на улице Шишканя выдал госстройнадзор Ленинградской области. 

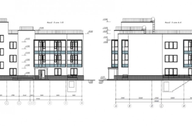
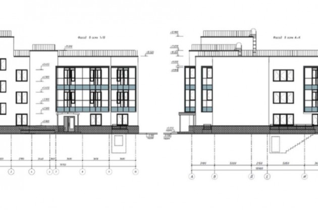
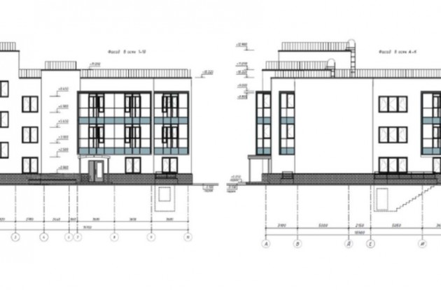
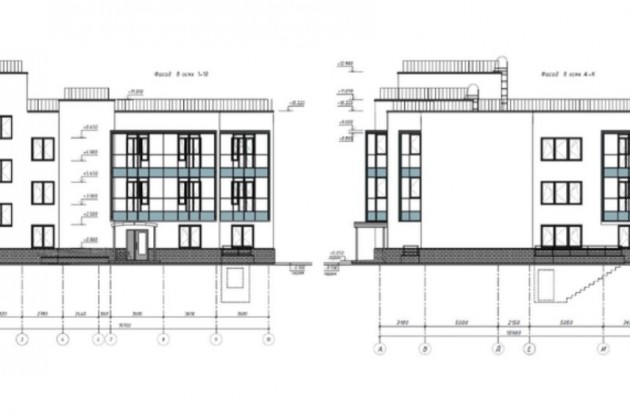
В новом доме на 19 квартир будут созданы специальные условия для граждан, нуждающихся в постоянном социально-бытовом и социально-средовом сопровождении. На каждом из трех этажей разместится просторная кухня-гостиная для досуга проживающих. Снаружи будут оборудованы парковки для машин и велосипедов. Общая площадь застройки составляет 317 кв. метров — около 70 % от нее будет отведено под озеленение территории. Общая площадь комплекса составит 1,2 тыс. м2.

Источники текста:

1) https://lenobl.ru/

2) https://nsp.ru/



Реализация национальных проектов

• Объекты городской среды


Разрешение на строительство

мая 2023


Назначение

Социальная инфраструктура / Объекты городской среды


Вид строительства

Новое строительство


Площадь застройки

317 кв/м


Общая площадь

1200 кв/м


Этажность

3


Адрес

Ленинградская область, Всеволожск,
улица Шишканя


Заказчики

ПАО "Группа ЛСР"

Поделиться в социальных сетях

Подрядчики


Стройматериалы