Завод электронного оборудования АО "ГРАНИТ-ВТ"

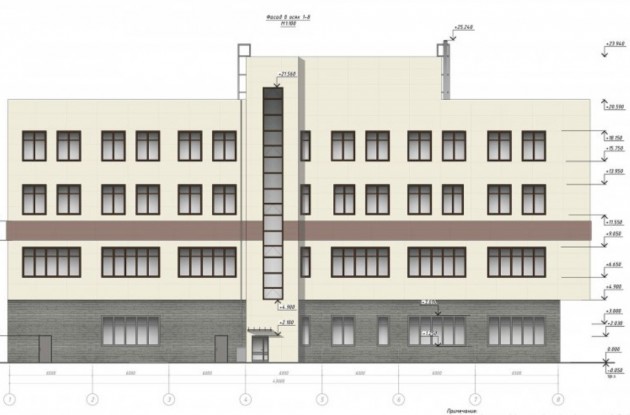
Госстройнадзор Санк-Петербурга выдал разрешение АО «Гранит-Вт» на строительство в Невском районе объекта легкой промышленности. Завод электронного оборудования появится на проспекте Елизарова, 38, на участке площадью 4,6 тыс. кв. м. Компания-застройщик планирует возвести здание производственного комплекса общей площадью 6720 кв. м с парковкой автотранспорта на 20 машино-мест.

Планируется, что в новом здании смогут разместиться 100 работников предприятия, кроме того для них в здании предусмотрен спортивный зал и учебно-исследовательский центр.

Источники текста:

1) https://www.gov.spb.ru/

2) https://ktostroit.ru/



Разрешение на строительство

июля 2023


Назначение

Производственные объекты / Заводы и цеха


Вид строительства

Новое строительство


Общая площадь

6720 кв/м


Этажность

3


Адрес

Санкт-Петербург,
проспект Елизарова, дом 38


Поделиться в социальных сетях

Подрядчики


АО "Гранит-ВТ"

Адрес

Санкт-Петербург,
Госпитальная ул., д. 3 литер а

Подробнее о компании
АО "Гранит-ВТ"

Застройщик

ООО "Аксиома СПб"

Саморегулируемая организация

АС «СтройПроект»


Адрес

Санкт-Петербург,
пр. Обуховской обороны, дом 112 , корп.2, литр З офис 803

Подробнее о компании
ООО "Аксиома СПб"

Генеральный проектировщик

Стройматериалы